Mẫu bản vẽ thiết kế chùa miếu đẹp - Chùa Giác Quan
Thời nay nhu cầu xây dựng các ngôi chùa khang trang, ngày càng tăng cao. Việc đầu tư vào bản vẽ thiết kế chùa miếu đẹp không chỉ là bước khởi đầu quan trọng cho một công trình tâm linh. Mà còn tăng nét đẹp cũng như là nét đặc trưng văn hóa của người dân Việt.

Một bản thiết kế mẫu chùa đẹp đạt chuẩn cần dung hòa giữa yếu tố phong thủy, nghệ thuật kiến trúc. Đồng thời cũng chú trọng đến công năng sử dụng, từ đó tạo nên một không gian thanh tịnh, uy nghi.
Điểm nổi bật của mẫu thiết kế chùa Giác Quan


Bản vẽ thiết kế đóng vai trò quan trọng trong bất kì một công trình, không riêng gì kiến trúc chùa. Định hình kiến trúc tổng thể, bố cục không gian sẽ giúp tiện ích khá nhiều khi đưa vào sử dụng. Một bản vẽ mẫu thiết kế chùa tốt giúp:
- Đảm bảo tỷ lệ cân đối giữa các khối kiến trúc.
- Hài hòa với cảnh quan tổng thể và phong thủy.
- Công năng bố trí khoa học, tiện cho việc di chuyển giữa các khu.
- Tối ưu chi phí thi công và vật liệu xây dựng.
- Tiết kiệm được khoản phát sinh, nếu có sai lệch trong tính toán khi xây dựng mà không có bản vẽ.
Chi tiết nổi bật trong bản vẽ thiết kế chùa miếu


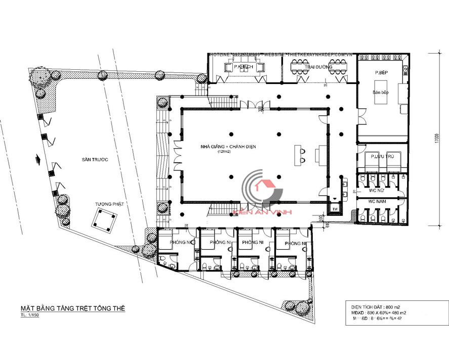
Kiến trúc sư khi thiết kế, đã thể hiện rõ sự phân chia giữa khu thờ chính và khu sinh hoạt. Chính điện được đặt ở vị trí trung tâm, vừa thể hiện được sự tôn nghiêm, vừa tiện cho việc di chuyển giữa các khu vực. Khu sinh hoạt, nhà khách và nơi tiếp phật tử được bố trí hợp lý. Thuận tiện di chuyển mà vẫn giữ được sự tĩnh tại, trang nghiêm.
Chất liệu sử dụng thường là gỗ lim, đá xanh, ngói, đồng và gạch đỏ vừa bền vừa tạo cảm giác cổ kính. Tỷ lệ các khối kiến trúc được kiến trúc sư thiết kế tuân theo tỷ lệ vàng. Giúp công trình vừa trang nghiêm mà lại vừa thể hiện tính thẩm mỹ cao.


Trong thiết kế chùa, trụ cột là yếu tố mang tính biểu tượng. Cột thường được làm bằng gỗ lim hoặc bê tông. Bề mặt được chạm khắc hoa văn hoặc chữ Hán mang ý nghĩa linh thiêng. Chi tiết này cần một đội có tay nghề tâm huyết để kheo trọn vẹn thẩm mỹ kiến trúc một cách hoàn hảo nhất.
Cửa chùa được làm bằng gỗ tự nhiên, chạm trổ tinh tế, tạo điểm nhấn uy nghi cho toàn bộ công trình. Một ngôi chùa đẹp không chỉ nằm ở kiến trúc mà còn ở cảnh quan hài hòa với thiên nhiên. Sân chùa lát gạch đỏ, xen kẽ cây xanh, tượng Phật, tiểu cảnh... Tất cả mang đến không gian thanh tịnh, nhẹ nhàng, giúp dễ dàng tĩnh tâm và thiền định.
Lưu ý khi đầu tư thiết kế và thi công chùa miếu
1. Chọn đơn vị thiết kế chuyên nghiệp: Kiến trúc sư cần am hiểu văn hóa Phật giáo. Để đảm bảo lối thiết kế đúng theo quy chuẩn nhà Phật.
2. Tôn trọng yếu tố cổ truyền: Không nên quá hiện đại hóa, làm mất đi vẻ uy nghi, linh thiêng vốn có.
3. Lên kế hoạch tài chính chi tiết: Tính toán kỹ chi phí vật liệu, nhân công và tiến độ thi công.
4. Tuân thủ quy định pháp lý: Phải có giấy phép xây dựng, đảm bảo công trình hợp pháp và an toàn.
Bản vẽ công năng bên trong mẫu chùa đẹp


Một bản vẽ thiết kế chùa đẹp không chỉ dừng lại ở khía cạnh đáp ứng nhu cầu thờ phụng, cúng kiến của con người. Mà còn cần chú trọng đến thẩm mỹ văn hóa, thể hiện qua từng đường nét. Cả về tỷ lệ và họa tiết để thể hiện trọn tấm lòng thành kính của con người với Phật pháp.
Bản vẽ thiết kế chùa đẹp được đầu tư thiết kế uy nghi, trang trọng, chú tâm từng chi tiết nhỏ. Giúp giữ gìn và phát huy giá trị văn hóa dân tộc Việt Nam.





CÔNG TY TNHH TƯ VẤN THIẾT KẾ – XÂY DỰNG NHÀ KIẾN AN VINH
Trụ sở chính: 434 Nguyễn Thái Sơn, Phường 5, Quận Gò Vấp, TP.HCM
VPĐD : 52 Tân Chánh Hiệp 36, P. Tân Chánh Hiệp, Quận 12, TP.HCM
Chăm sóc khách hàng: 0981.960.839
Kế Toán: (028) 3715 6379
Email: kienanvinh2012@gmail.com
Website: https://thietkenha.pro
Hotline: 0973 778 999 – 0902 249 297

Bình luận