Thiết kế mẫu biệt thự 3 tầng 15x27m có hầm xe và thang máy
Việc tạo ra một không gian sống tối ưu công năng, chi phí đầu tư tiết kiệm nhưng phải đáp ứng đủ tiện nghi. Hình thức này đang ngày càng được ưa chuộng. Bản vẽ BT632 - mẫu biệt thự 3 tầng 15x27m có hầm xe và thang máy là một mẫu nổi bật trong số mang nhiều tiện ích hiện đại.

Biệt thự đẹp với quy mô phù hợp cho gia đình từ 4 đến 7 thành viên. Đáp ứng hiệu quả cho các chủ nhà mong muốn một không gian sống rộng rãi, thoải mái nhưng vẫn có phần riêng tư.
Ưu điểm nổi bật của thiết kế biệt thự 3 tầng 15x27m
BT632 - mẫu thiết kế biệt thự 3 tầng đẹp này với mặt tiền rộng 15m. Công trình mang cảm giác bề thế và cân đối cho góc nhìn tổng thể. Đây là lợi thế lớn giúp kiến trúc sư dễ dàng triển khai phong cách kiến trúc hiện đại hay tân cổ điển. Chiều sâu 27m phân chia công năng một cách khoa học. Nhờ đó, mỗi thành viên đều có không gian riêng.


Tận dụng vật liệu kính được đưa vào ứng dụng cho các ô cửa. Là một trong những điểm nhấn đáng chú ý của mẫu biệt thự này. Sử dụng kính cường lực cho hệ cửa chính, cửa sổ và ban công. Giúp mặt tiền trở nên nổi bật, sang trọng mà còn góp phần tiết kiệm năng lượng điện sử dụng vào ban ngày.
Hầm để xe là lựa chọn thông minh nhằm tối ưu quỹ đất sử dụng. Thay vì chiếm diện tích sân trước để đậu xe, toàn bộ phương tiện được bố trí gọn gàng dưới tầng hầm. Không gian hầm xe còn kết hợp thêm kho chứa đồ, phòng kỹ thuật tùy theo nhu cầu của gia chủ. Việc đưa xe xuống hầm cũng giúp khu vực tầng trệt trở nên thông thoáng hơn.

Thang máy là tiện ích không thể thiếu trong biệt thự diện tích lớn. Với mẫu biệt thự 3 tầng 15x27m có hầm xe và thang máy mang lại nhiều tiện nghi. Việc tích hợp thang máy giúp việc di chuyển giữa các tầng trở nên nhanh chóng. Đặc biệt phù hợp với gia đình có người cao tuổi hoặc trẻ nhỏ.
Yếu tố tiện nghi và riêng tư của mẫu biệt thự 3 tầng
Biệt thự 3 tầng với 6 phòng ngủ là lựa chọn lý tưởng cho gia đình từ 4 đến 7 người. Mỗi phòng ngủ đều được thiết kế với diện tích hợp lý, phù hợp với nhu cầu đối tượng sử dụng. Về phong cách trong phòng cũng được bố trí linh hoạt theo độ tuổi và sở thích của người sử dụng.

Để có một khu vực thư giản riêng tư nhưng vẫn đảm bảo thẩm mỹ cho toognr thể kiến trúc. Công trình được bố trí ban công ở mỗi tầng. Điều này vừa giúp cho góc nhìn tổng thể được trang trọng hơn. Vừa tạo không gian thư giản riêng tư cho mỗi khu phòng.
Ngoài phòng ngủ, các tầng còn được bố trí thêm phòng làm việc, phòng sinh hoạt chung. Hay phòng giải trí hoặc spa tại gia, giúp không gian sống luôn linh hoạt và đáp ứng đầy đủ nhu cầu của gia đình.
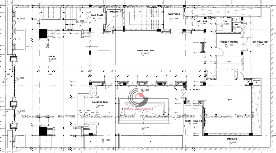
Bản vẽ công năng của mẫu biệt thự 3 tầng 15x27m


Một bản vẽ thiết kế mẫu biệt thự 3 tầng 15x27m được đầu tư kỹ lưỡng ngay từ đầu sẽ giúp chủ đầu tư kiểm soát tốt chi phí xây dựng. Đồng thời làm hạn chế phát sinh và tối ưu công năng sử dụng lâu dài. Việc kết hợp hầm xe, thang máy, 6 phòng ngủ cùng nhiều tiện ích khác giúp mang lại trải nghiệm sống trọn vẹn, tiện nghi và đẳng cấp.
Đây chính là hướng đi lý tưởng cho những chủ đầu tư đang tìm một không gian sống cao cấp, hiện đại. Vừa có phần đơn giản nhưng lại chất lượng. Có thể tham khảo thêm mẫu thiết kế nhà 3 tầng phong cách khác ở bên dưới, đddeercos góc nhìn đa dạng, phong phú hơn nhé.
>> Tham khảo thêm: mẫu biệt thự 3 tầng đẹp



CÔNG TY TNHH TƯ VẤN THIẾT KẾ – XÂY DỰNG NHÀ KIẾN AN VINH
VPĐD : 52 Tân Chánh Hiệp 36, Phường Trung Mỹ Tây, Tp.HCM (Quận 12 cũ)
Trụ sở chính: 434 Nguyễn Thái Sơn, Phường An Nhơn, TP. Hồ Chí Minh (P5, Gò Vấp cũ)
Chăm sóc khách hàng: 0981.960.839
Kế Toán: (028) 3715 6379
Email: kienanvinh2012@gmail.com
Website: https://thietkexaynhadep.com.vn
Hotline: 0973 778 999 – 0902 249 297

Bình luận